创意无极限,仪表大发明。今天为大家介绍一项国家发明授权专利——一种阀门远程控制系统。该专利由北京卓越立雅科技有限公司申请,并于2017年10月27日获得授权公告。
内容说明
本发明涉及阀门控制领域,特别是指一种阀门远程控制系统。
发明背景
目前为各种管道提供在线监测、自动控制的阀门远程管理系统,即通过有线、无线信号传输到指定的管理平台上,通过管理平台的自动分析使其对管道实施24小时的在线监测及管理,降低因管道泄漏的安全隐患,加快因管道泄漏后快速关闭管道内的物体使其减少管道泄漏造成的人员伤亡及环境污染。但是,现有的阀门远程控制系统存在安全性差、反应慢。此外,在外界温度较低时,阀门远程控制系统不灵活的问题。
发明内容
本发明提出一种阀门远程控制系统,解决了现有技术中阀门调节安全性差、反应慢的问题。此外,还解决了阀门远程控制系统在外界温度较低时不灵活的问题。
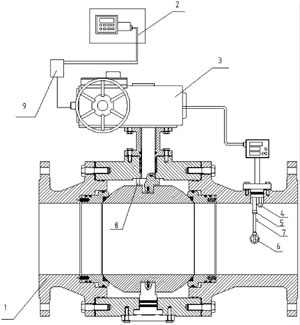
本发明的技术方案是这样实现的:一种阀门远程控制系统,包括:阀门;用于阀门远程操作和状态监测的上位机,设置在阀门外;用于上位机控制的微控制系统,设置在阀门上,控制阀门的驱动机构,与所述上位机通信;用于所述上位机和微控制系统通信的电力载波通信模块,与所述上位机和微控制系统电连接;以及用于检测所述阀门状态的信号采集模块,与所述微控制系统电连接。

图为本发明所述的阀门远程控制系统的结构示意图
所述微控制系统接收到所述上位机发出的指令后,控制所述信号采集模块采集阀门的状态,且根据阀门的状态发出控制阀门驱动机构的指令。
优选的是,所述的阀门远程控制系统中,所述微控制系统包括:主控单元,与所述电力载波通信模块电连接;无线传输单元,与所述主控单元、电路检测单元电连接,与所述上位机通信;用于所述主控单元、电路检测单元、无线传输单元供电的电源单元;用于监测主控单元和电源单元的电路检测单元;以及用于确保所述主控单元、电路检测单元、无线传输单元持续稳定供电的备用电源单元,与所述电源单元电连接;
所述电路检测单元监测所述电源单元,并将监测信息传输至所述主控单元,当所述监测信息不在预设的范围内,所述主控单元控制所述备用电源启动;所述预设的范围是所述电源单元正常运行的参数范围。
优选的是,所述的阀门远程控制系统中,所述信号采集模块包括:用于检测阀门内流量的流量传感器,设置在阀门内部,与所述主控单元电连接;用于检测阀门内压力的压力传感器,设置在阀门内部,与所述主控单元电连接; 用于检测阀门内温度的温度传感器,设置在阀门内部,与所述主控单元电连接;用于检测阀门内气体浓度的气体传感器,设置在阀门内部,与所述主控单元电连接;以及用于检测阀门启停的阀门启停传感器,设置在阀门内部,与所述主控单元电连接。
所述的阀门远程控制系统中,还包括:报警装置,设置在阀门外,与所述上位机电连接;所述主控单元接收并分析所述检测单元和信号采集模块检测到的信息,当检测到的信息超过预定信息的范围,所述主控单元与所述上位机通信,触发所述报警装置;所述预定信息的范围是阀门正常关闭、正常运行状态以及主控单元正常工作状态下的参数范围。
所述的阀门远程控制系统中,所述阀门内的驱动机构设置有用于手动控制阀门的**开关,设置在阀门外,与所述阀门的驱动机构连接。
本发明的有益效果为:本发明提供的阀门远程控制系统,利用上位机通过微控制系统对阀门进行远程操作和状态监测,微控制系统根据阀门的状态发出控制阀门驱动机构的指令,信号采集装置对阀门的状态实时监测,微控制系统快速执行控制阀门的指令,增强了阀门使用的安全性,提高了对阀门控制的速度。此外,增加了温控装置,有助于对阀门内部的温度调节,避免温度过低影响阀门的灵活性,从而影响阀门远程控制系统的灵活性。