品牌:德国沃德WODE
口径:DN15~DN300
压力:1.0-2.5Mpa
温度:-50℃~+150℃
起订:1台
供应:1000台
发货:3天内
进口不锈钢衬氟球阀
德国沃德WODE进口不锈钢衬氟球阀内腔及球体均采用高压注塑工艺衬有耐腐蚀,耐老化的聚全氟乙丙稀(F46),故具有可靠的耐腐蚀性和密封性。驱动方式:手动,蜗轮转动,气动,电动,该阀广泛用于化工,石油,冶金,等工业部门,实现对生产过程中酸,碱等强腐蚀介质的调节或切断,在水处理过程控制中使用效果明显。
进口不锈钢衬氟球阀用途:
衬氟球阀为控制各种强腐蚀性介质的启闭而进行的专业设计,广泛使用于石油,化工,染化,农药,制酸制碱等行业.
衬氟球阀主要衬里材料:聚全氟乙烯FEP (F46)
适用介质:任何有机溶剂等,稀或浓无机酸,碱,酮,芳烃,氯化烃等。
进口不锈钢衬氟球阀主要结构:
不锈钢衬氟球阀为全通径浮动球式,内衬氟塑料。球体与阀杆融为一体,清除了转动角差。
进口不锈钢衬氟球阀主要技术资料:
口径:DN15~DN300
压力:1.0、1.6、2.5Mpa或ANSI Class150
阀体材质: 304、316、316L等+F46
球体材质: 304、316、316L等+ F46
阀座衬里:PTFE(FEP、PFA、GXPO等)
使用温度:PFA:30~200℃;FEP:-30~+150℃;GXP:-10~+80℃
结构形式:O型球、V型球;浮动式、固定球式
适用介质:盐酸、硝酸、液氧、硫酸、王水等腐蚀性流体。
驱动:衬氟球阀按驱动方式有手动衬氟球阀、蜗轮转动衬氟球阀、气动衬氟球阀、电动衬氟球阀等。
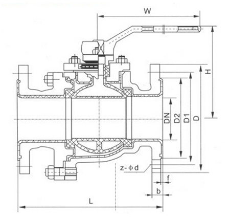
进口不锈钢衬氟球阀结构图:

注:由于网站版面的原因,具体外形尺寸请致电沃德各代理商。
进口不锈钢衬氟球阀结构特点:
1、不锈钢衬氟球阀的流体阻力小,衬里球阀内壁光滑,流道通畅是所有阀类中流体阻力最小的一种。
2、不锈钢衬氟球阀开关迅速、方便,只需将球体旋转90°,便完成开户和关闭动作。
3、不锈钢衬氟球阀采用特殊模压工艺,将衬里材料衬于阀门壳体内壁,能耐强酸、强碱介质的腐蚀。衬里球面与PTFE阀座组合,密封性好,达到了零泄漏。
4、不锈钢衬氟球阀的球体与阀杆融为一体,消除了转动角差,杜绝了因压力变化引起阀杆冲出体外的危险,保证了使用的安全性、可靠性。
5、不锈钢衬氟球阀可配置气动、电动、液动等多种驱动装置,实现远距离控制和自动化操作。
德国沃德WODE的不锈钢衬氟球阀主要是用于环境中多少有点腐蚀性的场所,由于阀体外壳均是不锈钢材质的,不会产生锈迹及腐蚀,影响阀门的寿命。
如有任何疑问;您可以致电给我们,我们一定会尽心尽力为您提供优质的服务!如果您有需要咨询更详细的产品信息,德国沃德WODE阀门中国区授权代理商-北京永德宝阀门有限公司欢迎您来电咨询订购。
