品牌:前进
型号:DN
规格:1000
起订:1台
供应:1500台
发货:3天内
玻璃钢闸门采用玻璃钢等复合材料经科学加工而成. 具有重量轻,强度高等优点,是传统铸铁闸门,不锈钢闸门,新型钢闸门的革命性替代品.
闸门是用于关闭和开放泄(放)水通道的控制设施,水工建筑物的重要组成部分,可用以拦截水流、控制水位、调节流量、排放泥沙和漂浮物等。其主要组成部分有主体活动部分,用于封闭或开放孔口,亦称门叶;还有埋固部分和启闭部分。闸门主要分为①铸铁闸门,包括平面拱形铸铁闸门(单向止水和双向止水)、平板铸铁闸门、圆形拍门、方形拍门、可调节堰门、镶铜铸铁闸门、高水头潜没式闸门、机闸一体闸门②钢制闸门,包括滑动式平面性钢闸门、滚动钢制闸门、玻璃钢闸门.
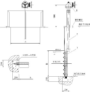
玻璃钢闸门的外形安装尺寸及安装图:
|
规格 项目 |
D1 |
D2 |
D3 |
b |
n-φd |
a° |
|
200 |
200 |
255 |
290 |
15 |
6-14 |
30 |
|
250 |
250 |
305 |
340 |
15 |
6-14 |
30 |
|
350 |
350 |
445 |
495 |
22 |
8-22 |
22.5 |
|
400 |
100 |
495 |
540 |
25 |
8-22 |
22.5 |
|
500 |
500 |
600 |
640 |
25 |
12-22 |
15 |
|
600 |
600 |
705 |
755 |
25 |
12-25 |
15 |
|
700 |
700 |
810 |
860 |
28 |
12-27 |
15 |
|
800 |
800 |
920 |
980 |
28 |
12-27 |
15 |
|
900 |
900 |
1020 |
1075 |
35 |
12-27 |
15 |
|
1000 |
1000 |
1120 |
1175 |
35 |
12-27 |
15 |
|
1200 |
1200 |
1320 |
1380 |
35 |
12-30 |
15 |
|
1300 |
1300 |
1430 |
1500 |
40 |
12-30 |
15 |
|
1400 |
1400 |
1520 |
1575 |
40 |
12-30 |
15 |
|
1600 |
1600 |
1760 |
1830 |
40 |
12-36 |
15 |
|
1800 |
1800 |
1760 |
1830 |
45 |
30-30 |
0 |
|
2000 |
2000 |
1970 |
2045 |
45 |
30-30 |
0 |
闸门一般由活动部分(也称门叶)、埋固部分和启闭机械3部分组成。门叶包括:承重结构、行走支承、支臂、支铰、止水装置、吊耳等。埋固部分包括:轨道、铰座、止水座、护角等。常用的启闭机械有:卷扬式、油压式、螺杆式和移动式机械。
玻璃钢闸门的选用:1、 选用闸门时应注明H值(闸门中心至启闭机底部平台高度); 2、 启闭机应根据表中启闭力及自动化程度确定,具体可参考启闭机样本。 3、 平台设计负荷应考虑正反双向承受(关闭力参考开启力)。 4、 轴导架是根据井深不同而设定的,设计时应与联轴器不干涉; 5、 工作时整条螺杆,联轴器、闸板都做上下移动为明杆闸门,工作是螺杆不移动,闸板上下移动称为暗杆闸门。 6、 方向承压闸门应选用时应注明,正向承压闸门当用于随受么向水压时,水头应<2.5m; 7、 暗杆闸门宜装于风景区或道路中间的窖井内,此种闸门自带开启装置,不需专用启闭机; 8、 订货时应注明H,并注明单独闸门(与配套启闭机)的具体名称、型号、规格; 9、 本厂可承制其它材料(不锈钢、碳钢、铝合金、塑料、玻璃钢)或特殊形状闸门
闸门是水工建筑物过水孔口的重要设备之一它的作用是全部或局部封闭过水孔口拦截水流以调节上、下游水位和流量以获得引水发电检修过水孔后设备可广泛应用于火电厂、水电站、泵站等取排水系统以及水利排灌、航道系统等水工建筑物上。
闸门包括门体和预埋两总值发门体包括框架部分、支承部分、止水部分及启吊部分等。 预埋包括导槽底座、门楣、底坎、联接锚栓及调节螺母等部分。闸门定位导向方式 采用斜铁定位导向闸门止水方式 在门体导槽底板上镶铜条以保证密封的可靠性。
玻璃钢 闸门安装与调试 1、先将所有一次埋件中的锚栓及埋板安装到一次留孔内要保证锚栓与埋板的垂直度尺寸达到图纸要求后浇注一次混凝土。 2、二次埋件安装前预将一次预留槽内的杂物清理干净一、二次混凝土结合面凿毛利于一、二次混凝土的结合。 3、将闸门与预埋门框整体组装检测两止水面间的间隙<0.30mm调整各部位尺寸及间隙达图纸要求后将门框及闸门整体吊入装到一次预留板上同时用垫片调整误差达到以下要求全长范围内的垂直度误差<5mm经检验确认后一次锚栓与二次锚栓搭接焊接*后浇注二次混凝土。 4、启闭机安装启闭机就位后确保启闭机螺杆之吊点中心与闸门吊点中心重合并检查中心吊点平衡情况调整螺杆支架之中心与启闭机螺杆之中心偏差<0.5mm调整好后浇注启闭机支架二次混涨土。 5、试验安装结束后应检查各部份零件紧固情况螺栓、螺母、减速机要加润滑油在各部分正常情况下手摇启闭二次而后差电试运转。
玻璃钢闸门的维护与保养 1、经常检查各连接螺栓、销轴、齿轮等零部件的松紧情况。 2、当螺杆与螺母间隙磨损增大时要更换配件。 3、当电动时应作闸门启到需要部位和下降到*低部位时的标记以防损坏启闭机。 4、要定期不定期给启闭机、减速机及螺杆、螺母注入润滑油。
